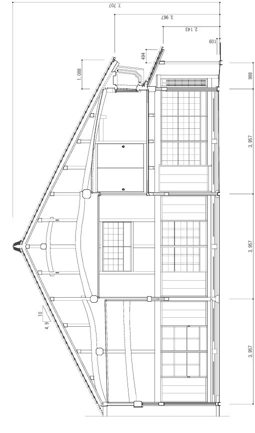
旧石橋家住宅中主屋は江戸時代後期の建築と考えられている。ただ、筋違を多用しており、後世の改変の可能性は高い。幅広の通り庭に沿って2列6室の部屋が並ぶ。通り庭は、表の大戸と格子の中戸でくぎられる。2階には東側表側の6畳間の押し入れの中に設けられた箱階段で上る。大規模町屋の代表例である。

 表構えは、1階に出格子を備え、2階は垂木まで塗り込め、内側に繰り型の施された袖壁を備えている。 

旧石橋家住宅(中主屋)

旧石橋家中主屋

西主屋

中主屋

箱階段

南立面図

西・中主屋平面図

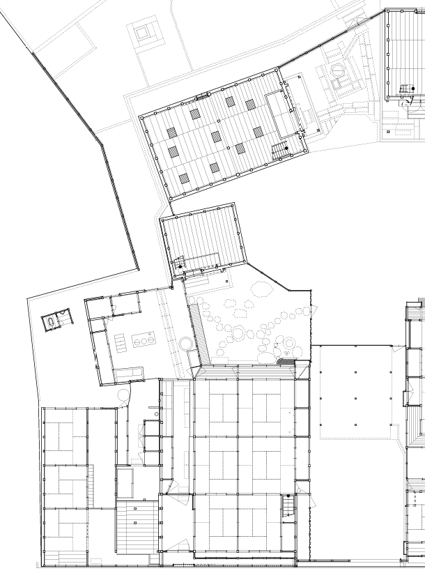
全体配置図兼平面

西主屋断面図

中主屋断面図

ホームに戻る